Quando se fala em construir ou remodelar uma casa, grande parte das pessoas pensa primeiro no layout, nos materiais ou na estética. No entanto, o verdadeiro conforto de um espaço depende muitas vezes de elementos menos visíveis, como os projetos de especialidades como o projeto de ventilação, exaustão de fumos e climatização.
Estes sistemas garantem qualidade do ar interior, controlo da temperatura e segurança do edifício.
Em Portugal, estes sistemas não são apenas uma questão de conforto — estão enquadrados por requisitos legais e regulamentares que devem ser considerados nos projetos de arquitetura e nas especialidades em processos de licenciamento, comunicação prévia e ainda em obras isentas de controlo prévio. Integrar estas soluções desde o início permite evitar problemas em obra, melhorar a qualidade do ar interior e assegurar que a habitação cumpre as normas técnicas em vigor.
Neste artigo explicamos como funcionam estes projetos, qual o enquadramento legislativo aplicável e apresentamos exemplos práticos numa remodelação de moradia.
ÍNDICE
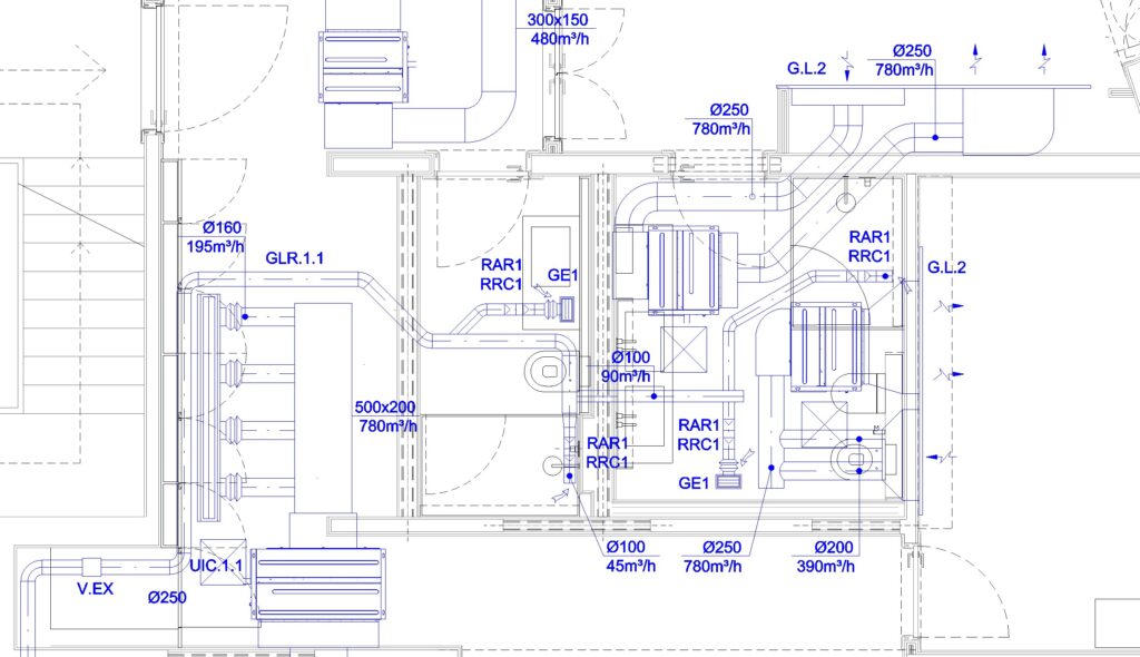
ToggleO QUE É UM PROJETO DE VENTILAÇÃO, EXAUSTÃO E CLIMATIZAÇÃO?
Um projeto de ventilação, exaustão e climatização define tecnicamente os sistemas responsáveis por garantir:
> renovação de ar interior
> remoção de humidade e poluentes
> conforto térmico ao longo do ano
> segurança na evacuação de fumos
Este tipo de projeto integra várias componentes técnicas, como:
sistemas de ventilação mecânica controlada (VMC)
> sistemas de exaustão de fumos
> sistemas de climatização, como ar condicionado ou ventilo-convectores
> redes de condutas e grelhas de distribuição de ar
O objetivo é assegurar que o edifício funciona de forma eficiente, saudável e conforme as normas de construção.
PROJETO DE VENTILAÇÃO: GARANTIR QUALIDADE DO AR INTERIOR
Porque é essencial ventilar corretamente uma habitação
As casas modernas são cada vez mais estanques para melhorar a eficiência energética. No entanto, essa estanquidade pode provocar problemas como:
> acumulação de humidade
> condensações
> aparecimento de bolores
> degradação da qualidade do ar interior
Um projeto de ventilação bem dimensionado permite garantir a renovação permanente do ar, removendo dióxido de carbono, odores e partículas.
Infelizmente, “96% dos edifícios residenciais existentes possuem ventilação natural/mista com extratores na cozinha e nas instalações sanitárias”) in Sistemas de Ventilação da ADENE).
Entre as soluções mais comuns, que garantem a renovação de ar interior por ar exterior, destacam-se:
VENTILAÇÃO NATURAL
> baseada em entradas de ar em caixilharias ou outras soluções
> exaustão em cozinhas e instalações sanitária
VENTILAÇÃO MECÂNICA
O sistema mecânico, promovido por ventiladores mecânicos, asseguram de forma controlada e contínua a renovação constante do ar, considerando a ligação a condutas próprias - sistemas com insuflação e extração mecânica e sistemas com ventiladores de extração.
>pode ser simples ou de duplo fluxo
>permite maior controlo da qualidade do ar
A VMC de duplo fluxo, por exemplo, permite recuperar calor do ar extraído, contribuindo para a eficiência energética do edifício – tendo assim uma dupla função em duas especialidades, dando resposta a requisitos de térmica.
VENTILAÇÃO MISTA
Conjuga dos dois tipos de ventilação, natural e mecânica, e define-se pela existência de extratores individuais (o mais normal os exaustores, extratores de casa de banho) ligados a condutas individualizadas.
É sempre importante relembrar que numa casa mal ventilada é normal existir concentrações de CO2 em compartimentos habitáveis o que promove um nível de ar viciado alto, com poluentes do interior da habitação, podendo até em caso mais extremo dar-se uma intoxicação por monóxido de carbono e ser muito prejudicial para a saúde. Uma casa bem ventilada é uma casa que permite saúde aos utilizadores, e garante também o aumento de vida útil do imóvel.
PROJETO DE EXAUSTÃO DE FUMOS: SEGURANÇA E CUMPRIMENTO DE NORMAS
A exaustão de fumos é um elemento essencial em cozinhas, garagens e alguns espaços comerciais.
O seu objetivo é remover:
> fumos de cozinhas
> gases de combustão
> odores
> partículas de gordura
Sem um projeto de exaustão adequado, podem surgir problemas como:
> acumulação de fumos no interior
> riscos para a saúde
> incumprimento das exigências regulamentares
Componentes de um sistema de exaustão
Um projeto técnico normalmente inclui:
> condutas de extração
> ventiladores de exaustão
> grelhas e bocas de captação
> sistemas de filtragem
> chaminés ou saídas de descarga
Em edifícios multi familiares ou espaços de restauração, o dimensionamento correto da exaustão de fumos é especialmente crítico para evitar conflitos entre frações e garantir o correto funcionamento do sistema.

PROJETO DE CLIMATIZAÇÃO: CONFORTO TÉRMICO AO LONGO DO ANO
Enquanto a ventilação trata da qualidade do ar, o projeto de climatização é responsável pelo conforto térmico.
Este projeto define os sistemas que permitem:
> arrefecer no verão
> aquecer no inverno
> controlar a humidade
> distribuir o ar de forma equilibrada
SISTEMAS MAIS COMUNS EM HABITAÇÃO
Ar condicionado
> sistema versátil e muito difundido
> permite aquecimento e arrefecimento
> instalação relativamente simples
Ventilo-convectores
> utilizam água quente ou fria
> frequentemente associados a bombas de calor
> distribuição de temperatura mais uniforme
Sistemas integrados com ventilação
> combinam climatização e renovação de ar
> solução comum em edifícios energeticamente eficientes
A escolha do sistema depende de vários fatores:
> dimensão do espaço
> nível de isolamento térmico
> tipo de utilização
> orçamento disponível
Por isso, um projeto de climatização é fundamental para garantir que o sistema instalado é adequado ao edifício.

PORQUE INTEGRAR ESTES PROJETOS DESDE O INÍCIO DA ARQUITETURA
Um erro frequente em obras de remodelação ou construção é tratar ventilação e climatização apenas numa fase tardia.
Quando estes sistemas são pensados desde o início do projeto de arquitetura, é possível:
> otimizar percursos de condutas
> evitar interferências estruturais
> reduzir custos de instalação
> melhorar a eficiência energética
> garantir melhor integração estética
Além disso, muitos processos de licenciamento de obras exigem projetos técnicos compatibilizados entre si.
A coordenação entre o projeto de arquitetura e as especialidades de engenharia permite evitar alterações em obra e garantir um resultado mais eficiente.

BOAS PRÁTICAS NUM PROJETO DE VENTILAÇÃO E CLIMATIZAÇÃO
Na prática profissional, existem algumas recomendações fundamentais:
DIMENSIONAMENTO CORRETO DOS SISTEMAS
Sistemas subdimensionados ou sobredimensionados provocam:
> consumo energético excessivo
> desconforto térmico
> desgaste prematuro dos equipamentos
INTEGRAÇÃO COM EFICIÊNCIA ENERGÉTICA
A ventilação e climatização devem ser compatíveis com:
> isolamento térmico do edifício
> caixilharias eficientes
> sistemas de energia renovável
MANUTENÇÃO E ACESSIBILIDADE
Um bom projeto prevê:
> acesso a equipamentos
> limpeza de filtros
> manutenção periódica
Estas medidas prolongam a vida útil dos sistemas e mantêm a qualidade do ar interior.
PERGUNTAS FREQUENTES SOBRE VENTILAÇÃO, EXAUSTÃO E CLIMATIZAÇÃO (FAQ)
É OBRIGATÓRIO TER PROJETO DE VENTILAÇÃO NUMA REMODELAÇÃO?
Depende da dimensão da intervenção. Em muitas obras de alteração significativa ou licenciamento, os sistemas de ventilação devem cumprir requisitos técnicos definidos na regulamentação da construção.
QUAL A DIFERENÇA ENTRE VENTILAÇÃO E CLIMATIZAÇÃO?
A ventilação trata da renovação do ar interior.
A climatização controla a temperatura e, em alguns casos, a humidade do espaço.
Ambos são complementares e contribuem para o conforto e saúde no interior dos edifícios.
O QUE É VMC?
A Ventilação Mecânica Controlada (VMC) é um sistema que garante renovação contínua do ar por ventiladores e condutas, sendo muito utilizada em edifícios modernos para melhorar a qualidade do ar interior.
VENTILO-CONVECTORES SÃO MELHORES QUE AR CONDICIONADO?
Não existe uma resposta única.
> Ar condicionado é geralmente mais simples de instalar.
> Ventilo-convectores podem oferecer maior conforto térmico quando integrados com sistemas hidráulicos, como bombas de calor.
A escolha depende do tipo de edifício e do projeto técnico.
PORQUE É IMPORTANTE PREVER A EXAUSTÃO DE FUMOS NA COZINHA?
A exaustão remove fumos, vapor de água, gorduras e odores produzidos durante a confeção de alimentos, melhorando a qualidade do ar e evitando acumulação de humidade.
Um projeto de ventilação, exaustão de fumos e climatização bem concebido é essencial para garantir conforto, saúde e eficiência energética em qualquer edifício.
Mais do que um detalhe técnico, estes sistemas influenciam diretamente a qualidade de vida dentro de casa ou o desempenho de um espaço comercial.
Quando integrados desde as primeiras fases do projeto de arquitetura, permitem soluções mais eficientes, económicas e adaptadas às necessidades de cada Cliente, considerando ainda os requisitos legais deste tipo de projeto técnico.
Contrariamente ao projeto de arquitetura paisagista, o projeto de ventilação, exaustão de fumos e climatização é um projeto muito técnico, onde as infraestruturas e condutas tendencialmente não serão visíveis, não são para contemplar, mas sim para garantir qualidade do ambiente interior.
Contar com uma equipa especializada em arquitetura e projetos técnicos é, por isso, um passo fundamental para transformar um espaço num ambiente confortável, saudável e funcional.
PRECISA DE AJUDA COM O SEU PROJETO? FALE CONNOSCO.

