ÍNDICE
ToggleREABILITAÇÃO DE MORADIA CARAMÃO DA AJUDA EM LISBOA
A reabilitação de moradia do Caramão da Ajuda foi um projeto sujeito a licenciamento pelas entidades licenciadoras.
A remodelação de moradias requer que o enquadramento da intervenção seja analisada corretamente, de forma garantir que o procedimento de controlo prévio garanta o sucesso da obra.
O BAIRRO DO CARAMÃO DA AJUDA
O Bairro do Caramão da Ajuda, em Lisboa, foi construído entre 1940 e 1945 na encosta da Ajuda, esta que deita para o Rio Tejo. O imóvel corresponde ao projeto-tipo para o Bairro do Caramão da Ajuda, conjunto de habitação económica de promoção pública municipal, sendo o bairro composto por casas térreas e de 2 pisos, dispostas em banda. As parcelas das moradias em banda, normalmente com com menos de 40m2, têm contudo quintais na parte frontal e a tardoz, o que valoriza a sua implantação e permite a fruição de espaço exterior.
O conceito destes bairros sociais de renda económica era representar a vivência em pequenas aldeias, de forma a criar a experiência de vida de aldeia, a serem ocupados na altura por classes sociais mais desfavorecidas.
Atualmente trata-se de um bairro em plena regeneração e que representa um aglomerado urbano cada vez mais coeso pelas sucessivas remodelações de casas que estão a acontecer cada vez com mais frequência.

CARACTERIZAÇÃO DA OPERAÇÃO URBANÍSTICA
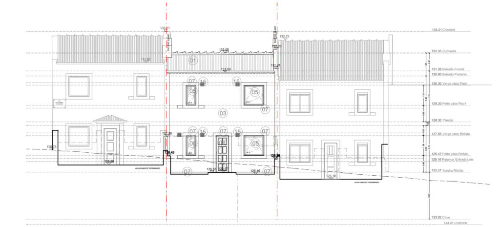
O presente projeto de arquitetura prevê para além da reabilitação de moradia do Caramão da Ajuda, uma ampliação de área a tardoz com a preservação de fachada principal e empenas laterais, prevendo a restante demolição de paredes de compartimentação e pavimentos.
A nova disposição de espaços interiores adaptados à vivência contemporânea e às necessidades dos residentes, resulta numa moradia com tipologia T3, ao invés de T2.
Pela análise do existente, foi decidido pelo equipa projetista ser necessária a demolição parcial do edifício para garantir as condições de segurança e cumprimento das legislações vigentes.
Estruturalmente, com a transformação dos espaços interiores, prevê-se a necessidade de uma nova estrutura, de forma a acomodar a nova disposição.
Como estratégia de demolição, está prevista a preservação das fachadas principal e laterais/meeiras da moradia Caramão da Ajuda, que serão alvo de contenção, sendo todo o interior, cobertura e fachada tardoz demolidas e reconstruídas.
Resultará uma nova estrutura capaz de responder aos requisitos e às exigências de resistência global do edifício, à implementação da melhoria energética nos padrões atuais e à modernização das infraestruturas.
Exteriormente a linguagem arquitetónica é preservada totalmente na fachada visível do arruamento e a cércea e cumeeiras mantidas nas suas cotas originais, para respeito pelas características do Bairro.
Na fachada tardoz promove-se a abertura de mais área envidraçada, para garantir a entrada de luz natural e arejamento necessário aos espaços.
Mantém-se neste exercício a simplicidade da edificação e privilegia-se acima de tudo uma composição silenciosa, no que respeita à linha arquitectónica da moradia Caramão da Ajuda.
MELHORIA DE DESEMPENHO ENERGÉTICO
Na cobertura está ainda prevista a colocação de painéis solares complanares com a água de cobertura e uma nova chaminé para a exaustão de cozinha, sendo, contudo, a chaminé original mantida no desenho e dimensões originais.
Está ainda prevista a colocação de isolamento térmico pelo exterior (ETICS), para promover uma melhoria na eficiência energética da construção.
TEM UMA MORADIA PARA REABILITAR?
PEÇA-NOS UM ORÇAMENTO . PREENCHA O FORMULÁRIO EM BAIXO. OBRIGADO

